8 Mimari Çizim Çeşitleri
Yayınlanan: 2023-05-11İnşaat projeleri, mimari çizimler gerektirmesi bakımından benzersizdir. Bu inşaat çizimleri, yeni inşaat, yeniden modelleme ve hayal edebileceğiniz neredeyse her tür inşaat projesi için kullanılır. Bina çizimleri yine de bir yekpare değildir. Birçok mimari çizim türü vardır.
Farklı inşaat çizimlerine, inşaat proje yönetiminde hangi amaca hizmet ettiklerine ve proje yönetim yazılımının bu bina inşaat planlarını projenin uygulama aşamasında inşaat ekibine rehberlik eden uygulanabilir adımlara dönüştürmeye nasıl yardımcı olduğuna bir göz atalım.
Mimari Çizim Nedir?
Bir mimari çizim eskiz, plan, diyagram veya şematik olabilir. Hangi formu alırsa alsın, mimari çizim, neyin inşa edildiğine dair ayrıntılı bilgileri iletmek için kullanılır. Bu teknik çizimler, binanın kat planı, kesiti veya başka bir perspektifi olabilen görünümü, pafta boyutları, ölçü ve ölçek birimleri, açıklama ve çapraz referanslama gibi bir dizi standarda göre mimarlar tarafından yapılır.
Geçmişte, bu inşaat çizimleri ve şartnameler mürekkep ve kağıtla yapılıyordu. Kopyalar, çok zaman ve çaba gerektiren elle yapıldı. Bu, aydınger kağıdına çizim yapılmasına yol açtı ve bilgisayarın gelişmesiyle birlikte neredeyse tüm mimari inşaat çizimleri bilgisayar destekli tasarım (CAD) yazılımında yapıldı.
Çoğu kelime ve resimlerin birleşiminden oluşan birçok mimari çizim türü vardır. Hepsi, inşaat projesinin tarzı ve estetiği hakkında kesin ayrıntıları iletir. Mimari, yapısal, ısıtma, havalandırma ve iklimlendirme (HVAC), elektrik ve sıhhi tesisat, yangından korunma planları vb. gibi dikey yapılarda çeşitli plan türleri kullanılır.
İnşaat projesinin çıktısı ne olursa olsun, inşaat diyagramı, inşaat projesi planına götüren gerekli bir adımdır. Proje yönetimi yazılımı, mimari çizimlerden uygulanabilir proje planlarına geçmek için gereklidir. ProjectManager, görevlerinizi organize eden, maliyetli gecikmeleri önlemek için dört bağımlılığı birbirine bağlayan ve hatta kritik yol için filtre uygulayan güçlü Gantt şemalarına sahip, ödüllü bir proje yönetimi yazılımıdır. Planınız tamamlandığında, doğru yolda kalmanıza yardımcı olması için planlanan çabayı gerçek çabanızla karşılaştırmak için bir temel belirleyin. ProjectManager'ı bugün ücretsiz olarak kullanmaya başlayın.

Mimari Çizimlerin Amacı Nedir?
Mimari çizimlerin amacı, inşa edilecek veya yeniden modellenecek bir yapının tasarımını ve düzenini iletmektir. Bu inşaat çizimleri, proje üzerinde çalışan mimarlar, inşaatçılar, mühendisler ve diğer inşaat profesyonelleri tarafından kullanılır. Aslında, mimari çizimler tüm proje paydaşları için önemlidir.
Mimari çizimlerin bir diğer nedeni de yapı ruhsatı, imar onayları ve diğer yasal gerekliliklerin alınmasında kullanılmasıdır. İnşaat projeleri, yasal olarak onaylanana kadar temel atamaz. Kurallara ve güvenlik düzenlemelerine uymalıdırlar ve inşaat çizimleri, düzenleyicilerin planların bu standartları karşılayıp karşılamadığını belirlemesine izin verir.
Mühendisler bina veya yapıdaki mekanik, elektrik ve sıhhi tesisat (MEP) özellikleri üzerinde çalışmak için mimari çizimleri kullanır. Alanı anlamalarını ve sistemlerini binanın içine nasıl yerleştireceklerini anlamalarını sağlar. Müteahhitler ayrıca, hangi inşaat malzemelerine ihtiyaç duyacaklarını ve diğer gereksinimleri anlamak için bu bina çizimlerini kullanırlar. Maliyetleri tahmin etmede ve proje için bir bütçe oluşturmada onlara yardımcı olur.
Mimari çizimlerin, alanı derinlemesine anlamaktan müşterileri projenin uygulanabilirliğine ikna etmeye kadar birçok amacı vardır. Herkese projenin kapsamı hakkında daha iyi bir fikir verir ve inşaat sürecinde yardımcı olur. İnşaat çizimlerinin önemi küçümsenemez.
Mimari Çizim Türleri
Belirtildiği gibi, birçok farklı bina çizimi türü vardır. Örneğin, teknik çizimler, mühendislik çizimleri, imalat çizimleri ve yapım aşamasındaki çizimler vardır. Bir inşaat projesinin tek bir çizimi yoktur, genellikle inşa edilecek şeyin tüm yönlerini göstermek için birçok çizimi vardır. İşte sekiz yaygın mimari çizim türü.
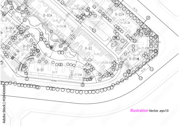
Site planı
Bu, bir binanın ve onu çevreleyen mülkün havadan görünüşüdür. Bunlar, yakındaki binaları ve yollar gibi altyapıyı içerebilir. Bu mimari çizim, mülkiyet sınırları bağlamında binanın nereye kurulacağını göstermesi açısından önemlidir. Çevre düzenlemesi, araba yolları, teraslar ve diğer tasarım öğeleri hakkında da ayrıntılar olabilir.

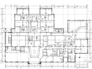
Kat planı
Kat planı binanın iç çizimidir. Binanın duvarları, kapıları ve pencereleri arasındaki ayrıntılı ölçümlere elektrik veya sıhhi tesisat sistemleri gibi belirli tasarım öğelerini içerebilirler. Kattaki her oda için genellikle yüzey alanı hesaplamaları vardır. Kat planı, proje tahminini bildirecektir. Bu planlar eskiden 2 boyutlu çizimlerdi, ancak giderek 3 boyutlu olarak yapılıyor.

Kesit Mimari Çizimler
Bir kesit mimari çizimi, binadaki çeşitli görünür ve gizli unsurları göstermeye yarayan 2 boyutlu bir çizimdir. Enine kesit, bir nesnenin sanki bir kısmı içini incelemek için dilimlenmiş gibi bir görünümüdür. Bu, binaya, izleyicilerin içeri bakmasına izin veren dikey bir yer boyunca yapılır. Bu, duvarların nasıl inşa edilmesi gerektiği, pencerelerin bu duvarlara nasıl oturduğu ve bir kattan diğerine yapısal geçişler gibi binanın nasıl bir araya getirildiğini göstermeye yardımcı olur. .

Peyzaj Mimari Çizimler
Tüm mimari çizimler binalara veya yapılara odaklanmaz. Dikkate alınması gereken bina veya yapıyı çevreleyen manzara da vardır. Bu çoğunlukla konut inşaatlarında ve daha az ölçüde ticari binalarda bulunur. İnşaat çizimi yerleşim planına yakındır, ancak daha çok manzaraya odaklanıldığı açıktır. Genel düzen ve ölçüler dahildir.


Kot Mimari Çizimleri
Binaya tam karşıdan bakıldığında dikey düzlemin işlendiği yer burasıdır. Genellikle binanın dışını önden, arkadan ve yandan görüldüğü gibi göstermek için yapılır. Kesit mimari çizimlerde olduğu gibi, iç görünümü düşey bir düzlemden gösteren cephe mimari çizimleri de olabilir.

Kazı Mimari Çizimleri
Bir de mimari çizimler yapılırken uğraşılması gereken bir şantiye konusu daha var, o da kazı. Sahada uğraşılması gereken hendekler, çukurlar, şaftlar, tüneller ve diğer toprak kaldırma türleri olması muhtemeldir ve bir kazı mimari çizimi bu işi detaylandıracaktır. Ayrıca kazı süreci hakkında da bilgi veriyorlar.

As-Built Mimari Çizimler
As-built mimari çizimler revizyonlardır. Orijinal planlardaki değişiklikleri ve binanın nasıl inşa edildiğini göstermek için kullanılırlar. Genellikle yüklenici tarafından binanın nasıl yapılması planlandığının aksine gerçekte nasıl yapıldığını göstermek için işaretlenirler. İnşaat projesi tamamlanana kadar bu yapılmaz.

Detay Mimari Çizimler
Bu tür bir mimari çizim, çok sayıda daha küçük kesit çizimlerinin yanı sıra binanın parçalarının yakın plan görünümlerinden oluşur. Özellikle binanın parçalarının nasıl bir araya getirildiğine dair ayrıntılar sağlarlar. Örneğin, betonarme kirişlerin nasıl monte edildiğini veya çatı saçakları ve pencere açıklıkları gibi özel tasarımları gösterebilirler.

Bunlar en yaygın inşaat çizimlerinden sekizidir, ancak bir şantiyede bulabileceğiniz her türden değildir. Örneğin, inşaatın son aşaması için zemin kaplamaları, pervazlar, dokular ve renkler ile ilgili bitirme çizimleri var. Konum çizimleri, farklı yapı elemanlarının genel konumlarını göstermek için kat planlarını, cepheleri ve kesitleri içerir. Bununla birlikte, bu mimari çizimlerin tümü, daha büyük inşaat planlama sürecine uygundur. Proje yönetimi yazılımının, bina çizimlerinden inşaata kadar bu köprünün kurulmasına nasıl yardımcı olduğuna bir göz atalım.
ProjectManager, Mimari Çizimleri Başarılı Projelere Dönüştürmeye Yardımcı Olur
Mimari çizimler, bir inşaat projesinde yapılması gerekenleri açıkladıkları için önemlidir. Planlamaya ek olarak tahmin ve teklif verme sürecini bilgilendirirler. İşte o zaman süreçler ve iş akışları Gantt şemalarında oluşturulur. ProjectManager, ekiplerin inşaat projelerini gerçek zamanlı olarak planlamasını, yönetmesini ve izlemesini sağlayan çevrimiçi proje yönetimi yazılımıdır. İnşaat ekibinin şantiyedeki saatlerini mobil cihazımızla veya her yerde ve her zaman kaydetmesine olanak tanıyan güvenli zaman çizelgeleri vardır.
Sınırsız Dosya Depolama ile Tüm Mimari Çizimlere Her Yerden Erişin
Planı uygulamaya koyduktan sonra bile, inşaat çizimlerini ve belgeleri hazır bulundurmanız gerekir. Sınırsız dosya depolama alanımız var, böylece her proje belgesini görmeniz gerektiğinde kullanabilirsiniz. Ekipler bu belgeleri paylaşabilir ve hatta talimata ihtiyaç duymaları halinde ofise geri gönderilebilecek resimleri ekleyerek görev düzeyinde yorum yapabilir. İşbirliğine dayalı yazılımımız, ister ofiste, ister şantiyede, işe gidip gelirken projeye girebileceğiniz anlamına gelir.

Çoklu İnşaat Projesi Yönetim Araçlarını Kullanın
İnşaat projesi yöneticileri, görevleri, maliyetleri ve kaynakları tek bir yerden yönetebildikleri için Gantt şemalarını severler. Ancak bu, bir duvar inşa etmeye veya bir pencere yerleştirmeye odaklanan ekip üyesi için çok fazla bilgi. Bu nedenle, insanların istedikleri gibi çalışabilmeleri için birden çok proje görünümümüz var. Örneğin ekip üyeleri planı görüntüleyebilir ve görevlerini bir görev listesinde veya kanban panosunda görebilir, bu da onların işbirliği yapmasına olanak tanır ve yöneticilere işlerinde şeffaflık sağlar. Takvim görünümleri, kilometre taşlarına ulaşılıp ulaşılmadığını görmek isteyen müşteriler için harikadır.

Projenin ilerleyişi hakkında onları bilgilendirmek için müşterinizle görüşmeniz gerektiğinde, raporlama araçlarımızı kullanabilirsiniz. Zaman alıcı kurulum olmadan istediğiniz zaman üst düzey bir görünüm için gerçek zamanlı panolar ve durum, portföy (birden fazla proje üzerinde çalışıyorsanız), zaman, maliyet, iş yükü, zaman çizelgeleri ve daha fazlası hakkında özelleştirilebilir raporlar vardır. . Görmek istediklerinizi görmek için raporları filtreleyebilir ve ardından bunları paydaşlarla paylaşabilirsiniz.
ProjectManager, ofiste, sahada ve hatta evde ekipleri birbirine bağlayan çevrimiçi proje yönetimi yazılımıdır. Görev yönetimi, risk yönetimi ve kaynak yönetimi araçları, programa uymanıza ve ekiplerin üretken kalmasına yardımcı olur. ProjectManager'ı bugün ücretsiz olarak kullanmaya başlayın.
